- Woonoppervlakte
- Circa 82 m²
- Perceeloppervlakte
- Circa 108 m²
- Bouwjaar
- Gebouwd in 1930
- Aantal kamers
- 5 kamers (4 slaapkamers)
Ben je op zoek naar een woning welke authentiek karakter combineert met modern comfort? Dan is dit aanbod echt iets voor jou. Gelegen in de geliefde ‘Oude Uitbreiding’, dicht bij de rivier en het gezellige centrum van Sliedrecht, is deze woning recent deels gerenoveerd en helemaal klaar om in te trekken.
De woning is op de 1ste etage aan de achterzijde geheel opgetrokken en biedt maar liefst vier slaapkamers. De keuken en badkamer zijn in 2024 volledig vernieuwd. Airconditioning en de nieuwe cv-ketel uit 2024 zorgen voor een aangename temperatuur en lagere energiekosten het hele jaar door. Ook de vloeren op de begane grond zijn recent vernieuwd, waardoor het geheel een frisse en moderne uitstraling heeft.
De zonnige ca. 12 meter diepe tuin is gesitueerd op het zonnige zuidwesten en kan nog naar eigen wens worden ingericht. Daarnaast is er een dubbele aangebouwde bergruimte, ideaal voor fietsen, opslag of een klushoekje.
Kortom, een woning welke het beste van twee werelden biedt: karakter en sfeer van vroeger, gecombineerd met modern gemak en praktische extra’s, klaar om jouw thuis te worden.
Tot snel tijdens een bezichtiging!
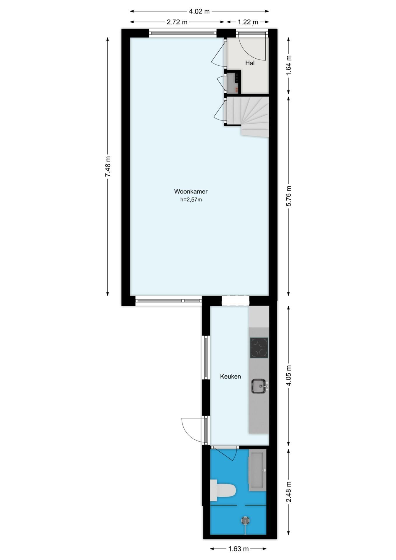
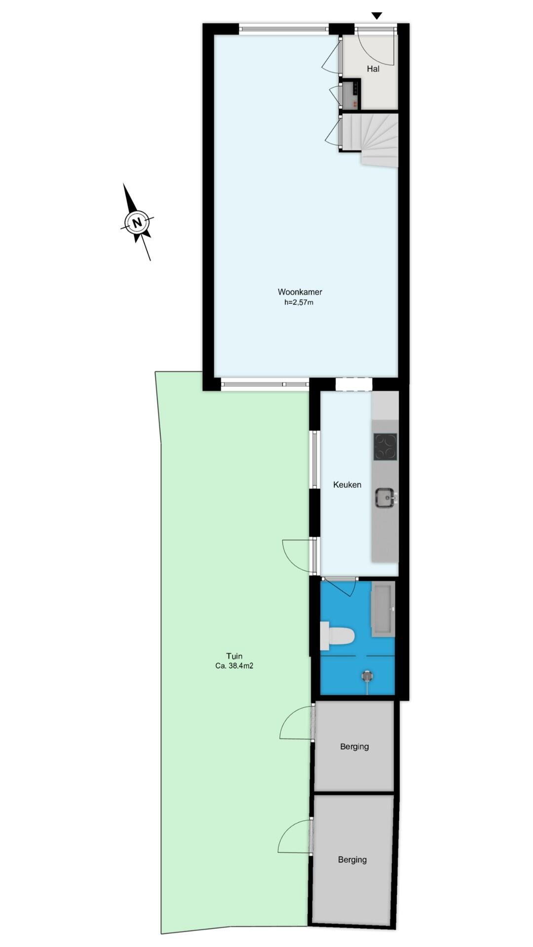
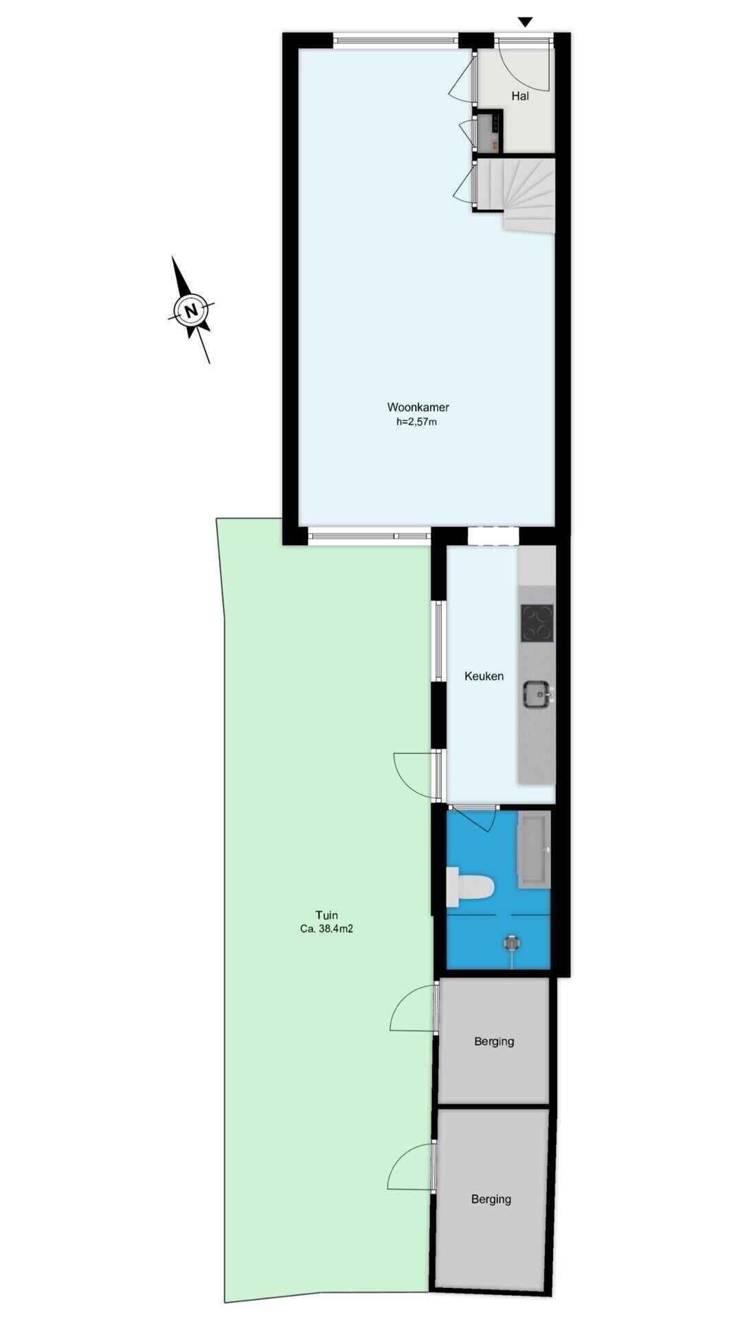
Indeling
De entree in de hal is voorzien van de garderobe en vaste kastruimte met diverse opbergmogelijkheden. De woonkamer oogt fris en modern, onder meer door het gebruik van heldere kleuren en de recent aangebrachte nieuwe laminaatvloer. Naast de meterkast en de afsluitbare trapopgang naar de etage vind je hier een eetgedeelte aan de straatzijde en een zitgedeelte aan de achterzijde, vanwaar de recent geplaatste keuken via een open doorgang te bereiken is. Deze keuken is in 2024 geplaatst in een parallelle opstelling, waarbij geen kosten noch moeite zijn gespaard. Het geheel oogt eigentijds en beschikt onder meer over een vaatwasser, een koelkast, een inductiekookplaat en een aansluiting voor de wasmachine. Vanuit de keuken is er toegang tot de bergzolder, de badkamer en de achtertuin. De badkamer is eveneens in 2024 vernieuwd en voorzien van onder meer een prachtig wastafelmeubel, een zwevend toilet en een inloopdouche. Daarnaast is de ruimte uitgerust met mechanische ventilatie.
Eerste verdieping
De overloop staat in directe verbinding met de drie slaapkamers op deze etage. De eerste slaapkamer is gelegen aan de volledig opgetrokken achterzijde en voorzien van airconditioning en vaste kastruimte. Ook de tweede slaapkamer ligt aan de achterzijde, beschikt over airconditioning en vaste kastruimte. De derde slaapkamer ligt aan de voorzijde en wordt momenteel gebruikt als inloopkast. De ruimte beschikt over een vaste kast met witgoedaansluitingen en de beklede trapopgang naar de zolderetage.
Tweede verdieping
De vierde slaapkamer beslaat de volledige breedte van de woning en is uitgerust met airconditioning en een Velux-dakraam, waardoor de kamer licht en aangenaam blijft. Tevens bevindt zich hier de CV-ketel (Intergas, 2024).
Tuin
De onderhoudsvriendelijke achtertuin ligt op het zonnige zuidwesten en biedt volop mogelijkheden. De ruimte bestaat momenteel uit een deel kunstgras en het grootste gedeelte betegeling. Hier is er genoeg vrijheid om de tuin naar eigen smaak in te richten. Vanuit de tuin heb je directe toegang tot de twee bergingen, ideaal voor extra opslag, een klusruimte of het creëren van een hobby- of werkruimte. Dankzij de gunstige ligging is de tuin een plek waar je straks kunt ontspannen, genieten van de zon en gezellige momenten kunt beleven met familie en vrienden.
Bijzonderheden
- De woning is gelegen op eigen grond.
- De woning beschikt over houten kozijnen.
- Oplevering ca. juni 2026.
Alle informatie is te vinden op:
admiraalderuyterstraat45.nl Lees de volledige omschrijving
Karaktervolle 2/1 kapper met zonnige tuin, recent geplaatste badkamer en keuken, gelegen nabij de rivier en het centrum!
Documentatie
Kadastrale kaart
Leefomgeving
Vragenlijst B
Meetrapport
Energielabel
WOZ waarderapport
BAG uittreksel
Plattegronden PDF
Brochure
Brochure
Floorplanner (plattegronden)
Bezichtiging
Bod uitbrengen
Waardebepaling
Alles downloaden
Overdracht
- Vraagprijs
- € 375.000 k.k.
- Status
- Verkocht onder voorbehoud
- Aanvaarding
- Beschikbaar per 01-06-2026
Bouw
- Object type
- Eengezinswoning, 2-onder-1-kapwoning
- Soort bouw
- Bestaande bouw
- Bouwjaar
- 1930
- Soort dak
- Zadeldak bedekt met pannen
Oppervlakte en inhoud
- Woonoppervlakte
- 82 m²
- Perceeloppervlakte
- 108 m²
- Inhoud
- 364 m³
- Externe bergruimte
- 9 m²
Indeling
- Aantal kamers
- 5 kamers (4 slaapkamers)
- Aantal badkamers
- 1 badkamer
- Badkamervoorzieningen
- Inloopdouche en toilet
- Aantal woonlagen
- 3 woonlagen
- Voorzieningen
- Dakraam en natuurlijke ventilatie
Energie
- Energielabel
- E
- Energielabel registratie
- 20-12-2023
- Isolatie
- Dakisolatie en grotendeels dubbelglas
- Verwarming
- Cv-ketel
- Warm water
- Cv-ketel
- Cv ketel
- Gas gestookt combiketel uit 2024, eigendom
Buitenruimte
- Ligging
- In woonwijk
- Tuin
- Achtertuin
Bergruimte
- Schuur / berging
- Aangebouwde stenen berging
- Voorzieningen
- Elektra
Parkeergelegenheid
- Soort parkeergelegenheid
- Openbaar parkeren
Indicatie hypotheeklasten
Eigen inleg:
Spaargeld / overwaarde
Rente:
Laagste 10-jaars rente
Laagste 10-jaars rente
2,78% - Centraal Beheer Groen... - NHG
3,04% - Centraal Beheer Groen... - 80%
Laagste 20-jaars rente
3,29% - Centraal Beheer Groen... - NHG
3,52% - Centraal Beheer Groen... - 80%
Laagste 30-jaars rente
3,41% - Centraal Beheer Groen... - NHG
3,7% - Argenta Groen Hypotheek... - 80%
Hypotheek:
Bruto maandlasten: € 0 p/m
Netto maandlasten: € 0 p/m
Hoe berekenen we dit?
Het rentepercentage is gebaseerd op de laagste 10 jaars vaste rente voor één hypotheekdeel. De vermelde rente (2.78% met NHG) is gecontroleerd op 16-03-2026. Deze berekening is gebaseerd op een annuïteitenhypotheek die volledig wordt afgelost, waarbij de maandlasten gedurende de gehele looptijd gelijk blijven. De werkelijke rente en netto maandlasten kunnen variëren, afhankelijk van uw persoonlijke situatie en de hypotheekverstrekker. Raadpleeg een financieel adviseur voor een nauwkeurige berekening en advies. Aan deze berekening kunnen geen rechten worden ontleend; het dient enkel als indicatie.
Zonnegrenzen bekijken
Op de kaart
Inwoners in Sliedrecht
Cijfers voor postcodegebied 3361
- Totaal aantal inwoners
- 6555 inwoners
- Mannen
- 50%
- Vrouwen
- 50%
Inwoners in Sliedrecht
Cijfers voor postcodegebied 3361
- tot 15 jaar
- 18%
- 15 tot 25 jaar
- 12%
- 25 tot 35 jaar
- 25%
- 45 tot 65 jaar
- 26%
- 65 en ouder
- 18%
Huishoudens in Sliedrecht
Cijfers voor postcodegebied 3361
- Eenpersoons zonder kinderen
- 31%
- Meerpersoons zonder kinderen
- 31%
- Huishoudens zonder kinderen
- 62%
Huishoudens in Sliedrecht
Cijfers voor postcodegebied 3361
- Huishoudens met één kind
- 5%
- Huishoudens met meerdere kinderen
- 34%
- Huishoudens met kinderen
- 39%
Woningen in Sliedrecht
Cijfers voor postcodegebied 3361
- Woningen voor 1945
- 52%
- Woningen tussen 1945 en 1965
- 4%
- Woningen tussen 1965 en 1975
- 1%
- Woningen tussen 1975 en 1985
- 3%
- Woningen tussen 1985 en 1995
- 17%
Woningen in Sliedrecht
Cijfers voor postcodegebied 3361
- Woningen tussen 1995 en 2005
- 7%
- Woningen tussen 2005 en 2015
- 13%
- Woningen na 2015
- 3%
- Huurwoningen
- 30%
- Koopwoningen
- 70%
Overige in Sliedrecht
Cijfers voor postcodegebied 3361
- Gemiddelde WOZ waarde
- € 258.000,-
- Personen onder de 65 met uitkering
- Niet beschikbaar
Overige in Sliedrecht
Cijfers voor postcodegebied 3361
- Adressen per km²
- 1660
- Stedelijkheid (schaal 1 op 5)
- 80%
Korte feiten over Sliedrecht
Sliedrecht is een plaats en gemeente in de Nederlandse provincie Zuid-Holland. De gemeente telt 26.270 inwoners (1 januari 2024, bron: CBS) en heeft een oppervlakte van 13,47 km². Sliedrecht ligt aan de Beneden-Merwede, en is een van de zogenaamde Drechtsteden. Binnen de gemeentegrenzen liggen geen andere kernen, maar alleen het gehucht Baanhoek, dat voor de postadressen onder de woonplaats Sliedrecht valt.
Makelaardij Stuij & Van Dijk
Indien u vragen heeft of u wilt een bezichtiging inplannen, dan kunt u gebruik maken van het formulier hiernaast. Er zal daarna op korte termijn contact met u worden opgenomen.
Binnendams 118
3373 AE, Hardinxveld-giessendam
0184 - 630 650 info@stuijenvandijk.nl www.stuijenvandijk.nlContact opnemen
Makelaardij Stuij & van Dijk
Onze vestigingen in Hardinxveld-Giessendam en Sliedrecht staan bekend om hun klantgerichte aanpak en uitstekende service. Wij combineren professionaliteit met persoonlijke aandacht, in tegenstelling tot de vaak onpersoonlijke benadering van grotere kantoren. Wij begrijpen hoe belangrijk het is om naar uw woonwensen te luisteren en begeleiden u op maat.
Wilt u uw huis verkopen? Dit is een grote stap waarbij veel komt kijken. Wat is een realistische vraagprijs? Hoe lang duurt de verkoop? Wat kunnen wij voor u betekenen? Wij bieden duidelijke informatie over het gehele verkoopproces.
Stuij & van Dijk beschikt over ruime ervaring, specialistische kennis en een sterk lokaal netwerk. Hierdoor kunnen wij u deskundig begeleiden bij de verkoop van uw woning. U krijgt bij ons een toegewijde makelaar die u gedurende het hele traject ondersteunt, van de eerste bezichtiging tot de uiteindelijke verkoop. Met een persoonlijke en professionele aanpak zorgen wij ervoor dat uw woning op de best mogelijke manier wordt verkocht.
Nieuwste reviews
-
Kievitlaan 36
Persoonlijk, betrokken, gedreven en deskundig met kennis van de markt.Een makelaar die van betekenis is voor zijn klantenIk kan deze makelaa...
-
Marco Advokaat
Stuij en van Dijk hebben mij heel goed geholpen met de verkoop van mijn huis. De communicatie was vanaf het begin duidelijk en prettig. Ze w...
-
Thorbeckelaan 21 A
Ik ben goed geholpen bij Stuij en van Dijk makelaars.Alle medewerkers waren aardig en goed bereikbaar als ik vragen had.Er wordt tijd voor j...